Баня 6 на 9,5
Модульная баня 6 на 9,5 метров с большой террасой — для комфортного отдыха
Модульная баня 6 на 9,5 метров — просторная баня с террасой и комфортной зоной отдыха, рассчитанная на круглогодичное использование в Новосибирске и области. Такое решение подойдёт, если нужна не просто парилка, а полноценное банное пространство для семьи и компаний с возможностью отдыхать после процедур внутри и на закрытой террасе.
Характеристики
● Размеры: 6 × 9,5 м, увеличенная площадь по сравнению с компактными банями, что даёт больше свободы в планировке и зонах отдыха.
● Назначение: Модульная баня для участка в Новосибирске и области, которую можно использовать как центр загородного отдыха в любое время года.
● Конструкция: Каркасная, с продуманным пирогом стен, пола и кровли для эксплуатации в сибирском климате с морозами, снеговыми и ветровыми нагрузками.
● Утепление: Минеральная вата с паро- и ветрозащитой, подобранная по аналогии с современными модульными домами и банями, чтобы баня хорошо держала тепло зимой и не перегревалась летом.
● Отделка: Современная комбинированная отделка фасада и тёплая внутренняя отделка деревом в стиле сканди-бань, с возможностью подобрать цвет и оформление под ваш участок.
● Коммуникации: Закладка под электрику, освещение, розетки, печь, вентиляцию и сантехнику, чтобы баня была готова к подключению на участке.
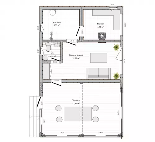
Планировка
● Терраса (21,14 м²): Большая закрытая терраса, которая может использоваться как зимний и летний лаундж — здесь удобно поставить стол, кресла, зону отдыха или мангал с выходом на двор.
● Комната отдыха (12,99 м²): Уютное помещение для дивана, стола и хранения банных принадлежностей, где можно расслабиться между заходами в парную и после процедур.
● Моечная (5,90 м²): Просторная помывочная зона с душем и местом для размещения всей необходимой сантехники и аксессуаров.
● Санузел (1,73 м²): Компактный, но функциональный санузел, который повышает комфорт регулярного использования бани всей семьёй и гостями.
● Парная (5,90 м²): Полноценная парная с удобными полками и местом под печь, рассчитанная на комфортное парение нескольких человек одновременно.
Технические детали
● Каркас: Деревянный каркас из доски камерной сушки с антисептической и огнебиозащитной обработкой, что повышает срок службы и безопасность конструкции.
● Утепление: Минеральная вата в стенах, полу и кровле с пароизоляцией и ветрозащитой по контуру, по логике современных модульных бань скандинавского типа, рассчитанных на сибирский климат.
● Кровля: Металлический профилированный лист или металлочерепица с гидроизоляцией, рассчитанные на снеговые нагрузки Новосибирска.
● Окна и двери: Тёплые оконные блоки и надёжная входная дверь, специальные двери в парную и помывочную, устойчивые к влаге и перепадам температур.
● Электрика: Электрощит с автоматами, скрытая проводка, выводы под внутреннее и наружное освещение, розетки в комнате отдыха и при необходимости на террасе.
● Монтаж: Баня поставляется модульными блоками, установка на участке занимает существенно меньше времени, чем классическое строительство, поэтому начать пользоваться баней можно значительно быстрее.
Преимущества для Новосибирска и области
Конструкция и пирог ограждающих конструкций адаптированы под климат Сибири: утепление, кровля и каркас рассчитаны на морозы, снег и ветер. Баня 6×9,5 м совмещает парную, помывочную, санузел, комнату отдыха и большую закрытую террасу, превращаясь в полноценную зону загородного отдыха.
Модульный формат сокращает сроки и риски строительства: вы получаете готовое решение с подготовкой под коммуникации и можете быстро начать пользоваться баней на своём участке.
Что входит в базовую стоимость дома
Минимум стоимости-максимум комфорта и функциональностиСтандартно фасады выполняются: из имитации бруса в комбинированном варианте (имитация бруса + профлист).
Стандартно фасады выполняются: из имитации бруса в комбинированном варианте (имитация бруса + профлист).
Стандартно фасады выполняются: из имитации бруса в комбинированном варианте (имитация бруса + профлист).
Стандартно фасады выполняются: из имитации бруса в комбинированном варианте (имитация бруса + профлист).
Стандартно фасады выполняются: из имитации бруса в комбинированном варианте (имитация бруса + профлист).
Стандартно фасады выполняются: из имитации бруса в комбинированном варианте (имитация бруса + профлист).
Стандартно фасады выполняются: из имитации бруса в комбинированном варианте (имитация бруса + профлист).
Стандартно фасады выполняются: из имитации бруса в комбинированном варианте (имитация бруса + профлист).
Стандартно фасады выполняются: из имитации бруса в комбинированном варианте (имитация бруса + профлист).
Официальный договор
Фиксируем сроки, этапы и стоимость. Всё чётко и прозрачно.
Гарантия на все виды работ
Даём реальные сроки гарантии и быстро реагируем, если что-то пойдёт не так.
Работаем по регламенту
Каждый этап — по плану. Никакой самодеятельности или «как получится».
ОТВЕЧАЕМ ЗА РЕЗУЛЬТАТ
Сами осуществляем доставку и монтаж