Дом 6 на 3,4
Модульный дом 6x3.4 м — компактный вариант для дачи и отдыха
Модульный дом 6 на 3.4 метра (площадь около 20 м²) идеален для небольшого участка в Новосибирске и области. Компактная планировка для 1-2 человек: кухня-гостиная со спальной зоной, отдельный санузел и просторное крыльцо.
Минималистичный скандинавский стиль, быстрая установка на фундамент. Конструкция ориентирована на сибирский климат: дом рассчитан на снеговую и ветровую нагрузку, помогает сохранять тепло в морозы и комфортно чувствовать себя круглый год.
Характеристики
● Размеры: 6 x 3.4 м.
● Конструкция: Каркасная с утеплением стен, пола, крыши.
● Отделка: Внешняя и внутренняя по вашему выбору.
● Окна: Панорамное остекление для естественного света.
● Коммуникации: Разводка электрики, воды, вентиляции.
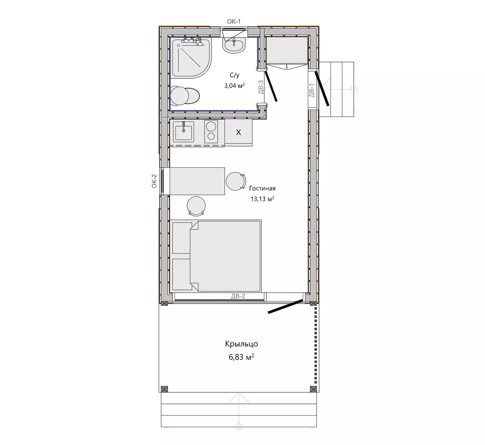
Планировка
● Кухня-гостиная со спальной зоной (13.13 м²):
Линейная кухня вдоль одной стены с мойкой, плитой, шкафами и холодильником + полноценная кровать напротив в нише. Эргономичная зона для готовки, еды и сна.
● Санузел (3.04 м²): Душ, унитаз, раковина.
● Крыльцо (6.83 м²): Крытая веранда для отдыха.
Технические детали
● Каркас из доски камерной сушки с антисептиком
● Утепление базальтовой ватой + ветрозащита
● Крыша: профлист или металлочерепица
● Предустановка под кондиционер, точечное освещение
● Энергоэффективность для сибирских зим
Что входит в базовую стоимость дома
Минимум стоимости-максимум комфорта и функциональностиСтандартно фасады выполняются: из имитации бруса в комбинированном варианте (имитация бруса + профлист).
Стандартно фасады выполняются: из имитации бруса в комбинированном варианте (имитация бруса + профлист).
Стандартно фасады выполняются: из имитации бруса в комбинированном варианте (имитация бруса + профлист).
Стандартно фасады выполняются: из имитации бруса в комбинированном варианте (имитация бруса + профлист).
Стандартно фасады выполняются: из имитации бруса в комбинированном варианте (имитация бруса + профлист).
Стандартно фасады выполняются: из имитации бруса в комбинированном варианте (имитация бруса + профлист).
Стандартно фасады выполняются: из имитации бруса в комбинированном варианте (имитация бруса + профлист).
Стандартно фасады выполняются: из имитации бруса в комбинированном варианте (имитация бруса + профлист).
Стандартно фасады выполняются: из имитации бруса в комбинированном варианте (имитация бруса + профлист).
Официальный договор
Фиксируем сроки, этапы и стоимость. Всё чётко и прозрачно.
Гарантия на все виды работ
Даём реальные сроки гарантии и быстро реагируем, если что-то пойдёт не так.
Работаем по регламенту
Каждый этап — по плану. Никакой самодеятельности или «как получится».
ОТВЕЧАЕМ ЗА РЕЗУЛЬТАТ
Сами осуществляем доставку и монтаж