Дом 6 на 6
Модульный дом 6x6 м — комфортный дом для отдыха и проживания
Модульный дом 6 на 6 метров — это продуманное решение для семьи или пары, которые хотят больше пространства на участке в Новосибирске и области. Конструкция рассчитана на сибирские условия: дом выдерживает снеговую нагрузку, устойчив к морозам и ветровым нагрузкам, сохраняя комфорт внутри.
В продуманной планировке разместились гостиная, отдельная спальня, санузел и большое крыльцо. Лаконичный современный стиль и функциональная планировка подходят как для дачи, так и для постоянного проживания.
Характеристики
● Размеры: 6 x 6 м.
● Конструкция: Каркасная с утеплением стен, пола и крыши.
● Отделка: Внешняя и внутренняя по вашему выбору.
● Окна: Большие световые проёмы для естественного освещения.
● Коммуникации: Разводка электрики, воды, вентиляции для подключения на участке.
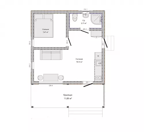
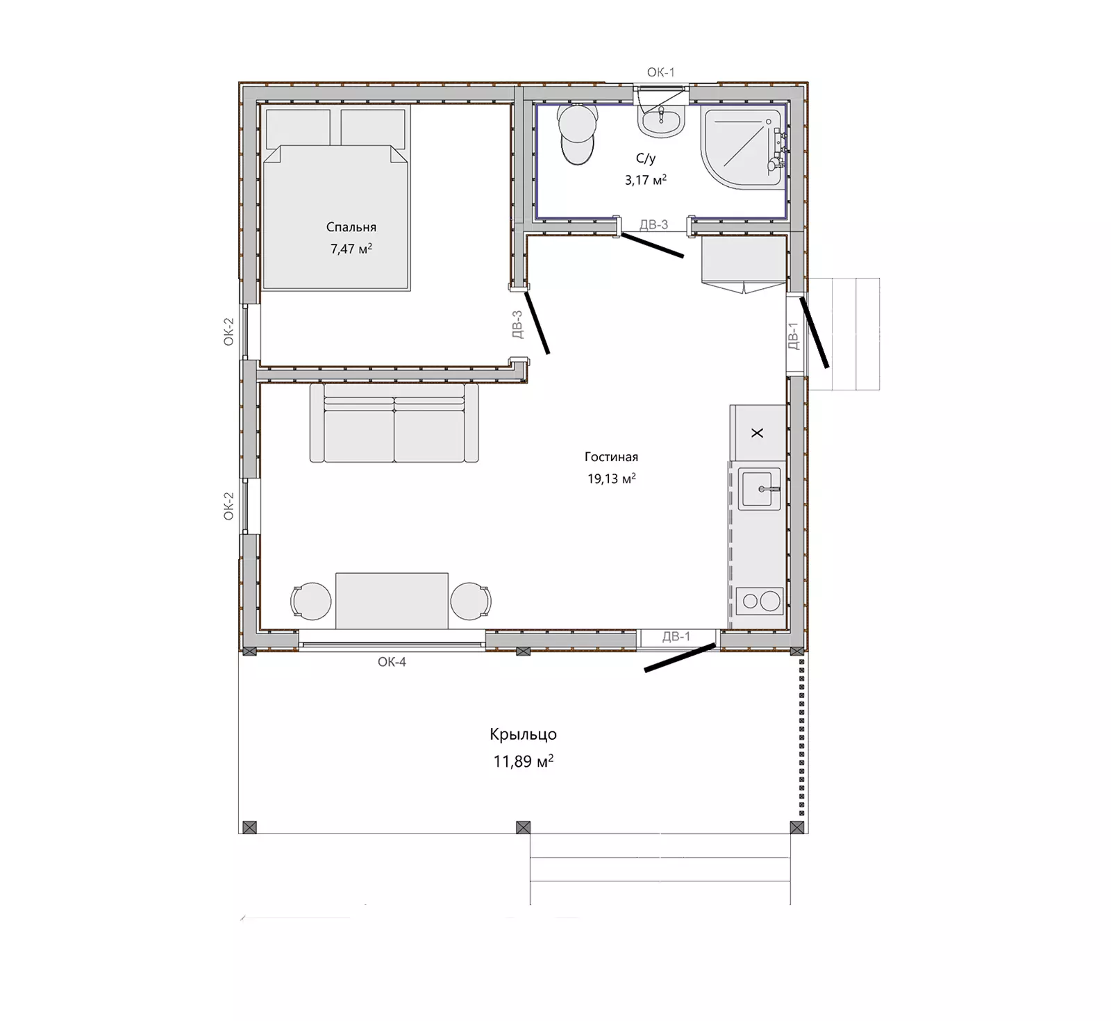
Планировка
● Гостиная (19.13 м²): Основное пространство дома для отдыха, приёма гостей и размещения кухни. Здесь размещается кухонная зона, обеденный стол и диванная группа.
● Спальня (7.47 м²): Отдельная комната для полноценного спального места и системы хранения.
● Санузел (3.17 м²): Зона для душа, унитаза и раковины.
● Крыльцо (11.89 м²): Просторная открытая площадка у входа, где удобно поставить стол и стулья.
Технические детали
● Каркас из деревянной доски с защитной обработкой.
● Утепление минераловатными плитами с ветрозащитой.
● Кровля из листовых материалов с защитой от осадков.
● Подготовка под освещение и розетки в основных зонах.
Что входит в базовую стоимость дома
Минимум стоимости-максимум комфорта и функциональностиСтандартно фасады выполняются: из имитации бруса в комбинированном варианте (имитация бруса + профлист).
Стандартно фасады выполняются: из имитации бруса в комбинированном варианте (имитация бруса + профлист).
Стандартно фасады выполняются: из имитации бруса в комбинированном варианте (имитация бруса + профлист).
Стандартно фасады выполняются: из имитации бруса в комбинированном варианте (имитация бруса + профлист).
Стандартно фасады выполняются: из имитации бруса в комбинированном варианте (имитация бруса + профлист).
Стандартно фасады выполняются: из имитации бруса в комбинированном варианте (имитация бруса + профлист).
Стандартно фасады выполняются: из имитации бруса в комбинированном варианте (имитация бруса + профлист).
Стандартно фасады выполняются: из имитации бруса в комбинированном варианте (имитация бруса + профлист).
Стандартно фасады выполняются: из имитации бруса в комбинированном варианте (имитация бруса + профлист).
Официальный договор
Фиксируем сроки, этапы и стоимость. Всё чётко и прозрачно.
Гарантия на все виды работ
Даём реальные сроки гарантии и быстро реагируем, если что-то пойдёт не так.
Работаем по регламенту
Каждый этап — по плану. Никакой самодеятельности или «как получится».
ОТВЕЧАЕМ ЗА РЕЗУЛЬТАТ
Сами осуществляем доставку и монтаж