Дом 8 на 6
Модульный дом 8x6 м — надежный дом для отдыха и проживания
Модульный дом 8 на 6 метров — это компактное и комфортное решение для семьи или пары, которым важны изолированная спальня и разделение кухни и гостиной в Новосибирске и области. Дом рассчитан на сибирский климат, выдерживает снеговые и ветровые нагрузки, сохраняет тепло зимой и прохладу летом.
Характеристики
● Размеры: 8 x 6 м, оптимальный формат для дачи или круглогодичного проживания.
● Конструкция: Каркасная с утеплением стен, пола и крыши для использования круглый год.
● Отделка: Внешняя и внутренняя по вашему выбору — от бюджетных решений до премиальных материалов.
● Окна: Увеличенные световые проёмы в зоне гостиной для естественного освещения и визуального увеличения пространства.
● Коммуникации: Разводка электрики, воды и вентиляции с возможностью подключения к сетям на участке.
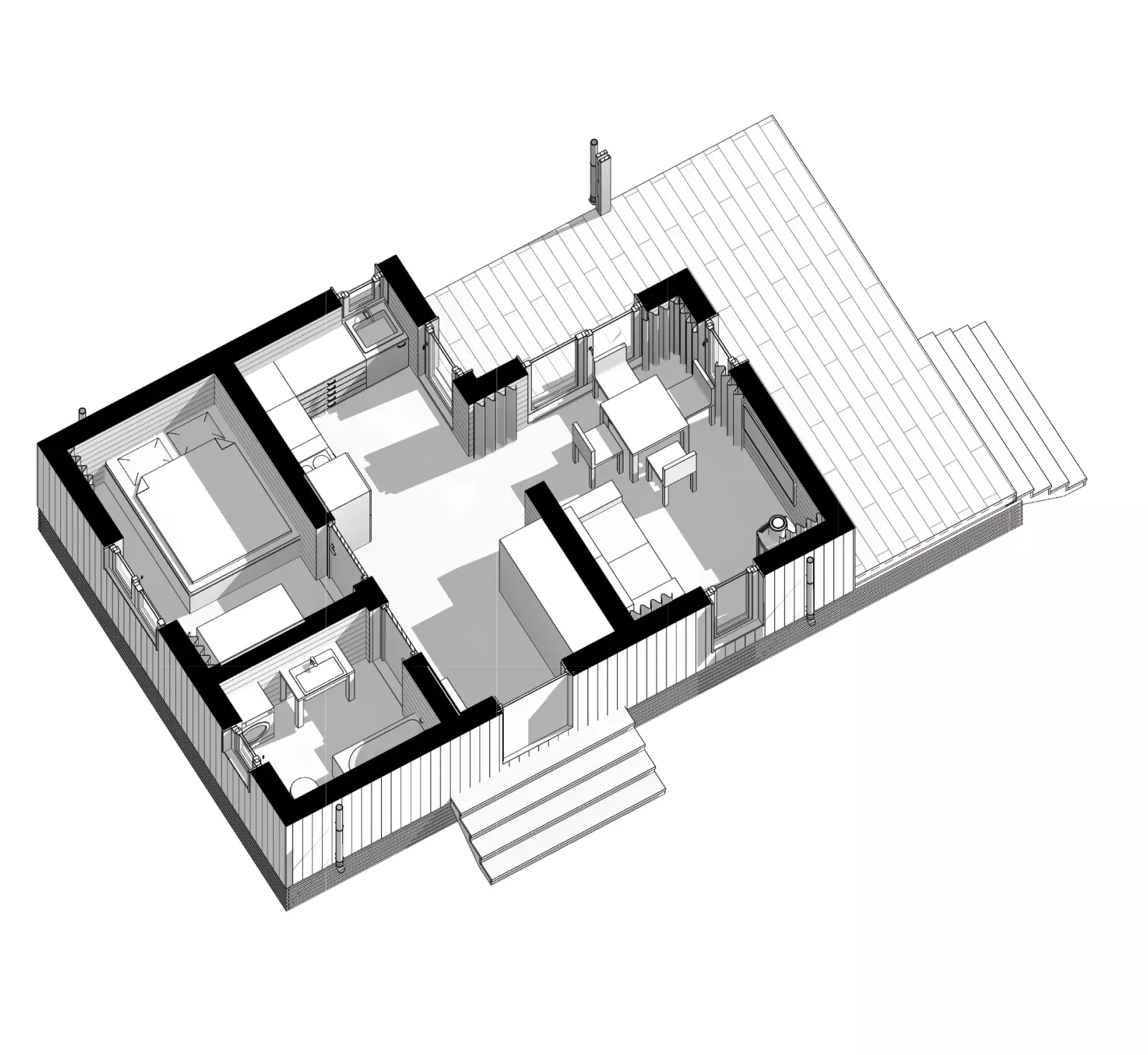
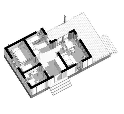
Планировка
● Кухня: Отдельно выделенная зона, скрытая от диванной группы, что снижает распространение запахов и создаёт более аккуратный вид в гостиной.
● Гостиная: Пространство для отдыха с диванной группой и обеденным столом, который расположен именно в гостиной, а не на кухне.
● Спальня: Изолированная комната с дверью, обеспечивающая приватность и спокойный сон, даже когда в гостиной кто-то отдыхает или смотрит телевизор.
● Санузел: Компактный, но функциональный блок с местом под душ, унитаз и раковину.
● Входная зона: Небольшая прихожая или тамбур для размещения обуви и верхней одежды, чтобы грязь и холод не попадали в жилую часть.
Технические детали
● Каркас: Из древесины с защитной обработкой от влаги, плесени и насекомых, что продлевает срок службы дома.
● Утепление: Минераловатные плиты с ветрозащитой и пароизоляцией, рассчитанные на эксплуатацию в сибирском климате.
● Кровля: Металлочерепица или профлист с гидроизоляцией для защиты от осадков и образования наледи.
● Электрика: Подготовка под освещение, розетки в основных зонах, выводы под бытовую технику на кухне.
● Готовность к установке: Дом собирается из заводских модулей, монтаж на участке занимает минимум времени по сравнению с классическим строительством.
Что входит в базовую стоимость дома
Минимум стоимости-максимум комфорта и функциональностиСтандартно фасады выполняются: из имитации бруса в комбинированном варианте (имитация бруса + профлист).
Стандартно фасады выполняются: из имитации бруса в комбинированном варианте (имитация бруса + профлист).
Стандартно фасады выполняются: из имитации бруса в комбинированном варианте (имитация бруса + профлист).
Стандартно фасады выполняются: из имитации бруса в комбинированном варианте (имитация бруса + профлист).
Стандартно фасады выполняются: из имитации бруса в комбинированном варианте (имитация бруса + профлист).
Стандартно фасады выполняются: из имитации бруса в комбинированном варианте (имитация бруса + профлист).
Стандартно фасады выполняются: из имитации бруса в комбинированном варианте (имитация бруса + профлист).
Стандартно фасады выполняются: из имитации бруса в комбинированном варианте (имитация бруса + профлист).
Стандартно фасады выполняются: из имитации бруса в комбинированном варианте (имитация бруса + профлист).
Официальный договор
Фиксируем сроки, этапы и стоимость. Всё чётко и прозрачно.
Гарантия на все виды работ
Даём реальные сроки гарантии и быстро реагируем, если что-то пойдёт не так.
Работаем по регламенту
Каждый этап — по плану. Никакой самодеятельности или «как получится».
ОТВЕЧАЕМ ЗА РЕЗУЛЬТАТ
Сами осуществляем доставку и монтаж